Hopp til hovedinnholdet
DJI 0083 Edit 2
NYE FARGER: Skur 38 var tidligere rødt og hvitt. Nå har det fått farger som passer med det øvrige havnemiljøet. Inngangspartiet er flyttet fra sjøsiden til bysiden. Foto: HK. Riise/Oslo Havn.
HKR7242 Edit
Uteomr de sitte
Skur 38 Iark photo Niklas Hart 31
Interiør Foto IARK Niklas Hart
Kontor Foto IARK Niklas Hart
Kantine Foto IARK Niklas Hart
Skur 38 Iark photo Niklas Hart 8
IMG 8403
IMG 4689
IMG 46971
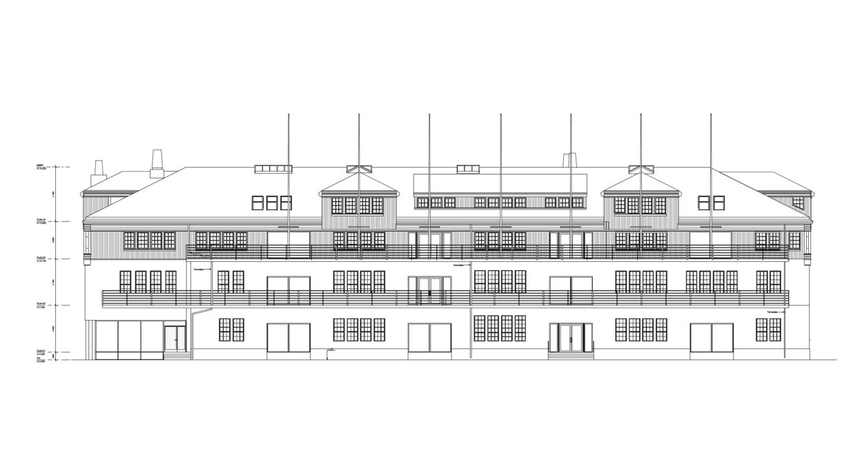
Fasade HILLE MELBYE ARKITEKTER AS
Fasade Sør og nord HILLE MELBYE ARKITEKTER AS
Fasade vest HILLE MELBYE ARKITEKTER AS
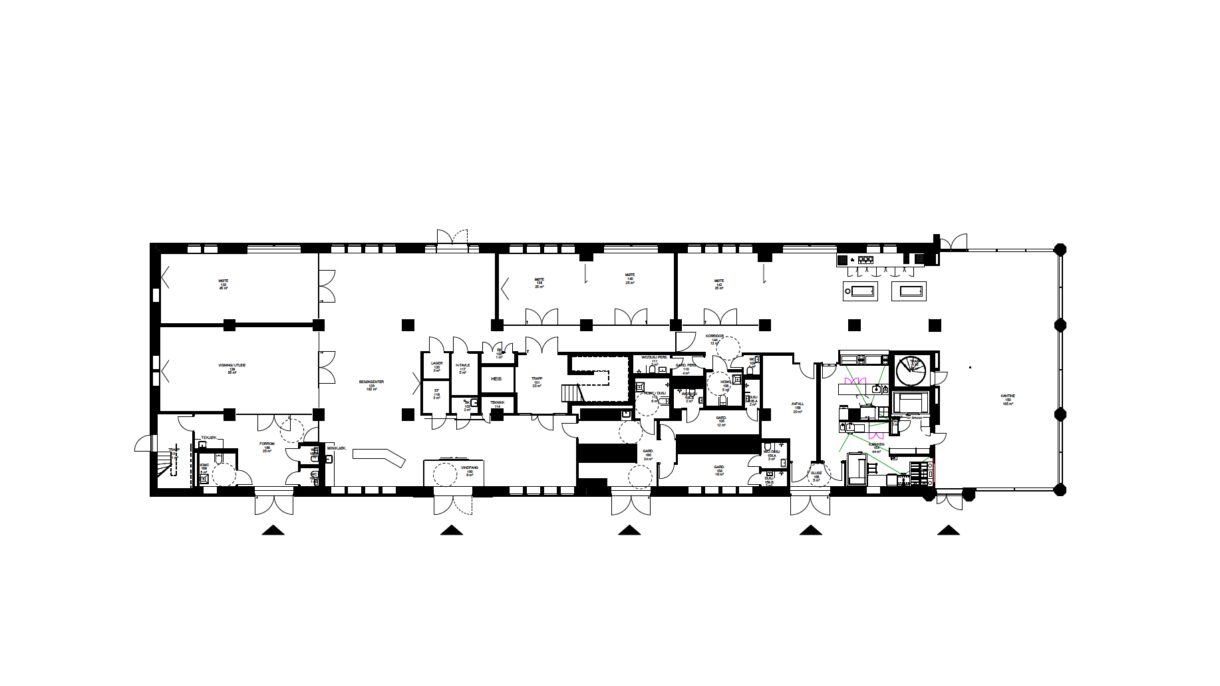
Plan 01
Skur  38 er i tet som Norges første bygg med leirebetong. Foto: Hans Kristian Riise/Oslo Havn
DSCF3154 Edit
T Lauluten T5 B9117 web 72dpi
Skjermbilde 2021 09 29 kl 10 16 58
T Lauluten T5 B9153 web 72dpi

Skur 38

2025.07.29 08:21

Oslo Havn har rehabilitert bevaringsverdige Skur 38 på Vippetangen etter sirkulære prinsipper.

Utbygger

Oslo Havn

Kommune

Oslo

Arkitekt / interiørarkitekt

Hille Melbye Arkitekter og Kristin Jarmund Arkitekter (arkitekt), IARK (interiørarkitekt)

Miljørådgiver

Bollinger + Grohmann Ingeniører AS, zero emission studio as

Landskapsarkitekt

Bjørbekk & Lindheim

Status

Ferdigstilt (2022)

Prosjektbeskrivelse

Skur 38 – Oslo havns hovedkontor på Vippetangen er rehabilitert til et moderne kontorbygg med gode utearealer som bidrar til positiv utvikling av området.

Bygget står på Byantikvarens gule liste og er merket verneverdig i Maritim kulturminneplan for Oslo. Rehabiliteringen er gjort på en måte som synliggjør byggets historie, samtidig som moderne teknologi og energieffektive løsninger er tatt i bruk.

Arbeidene startet høsten 2020, og bygget var innflyttingsklart sommeren 2022.

Miljøtiltak

Bymiljø og arkitektur

Skur 38 har en unik beliggenhet i et historisk bygningsmiljø på Vippetangen, med Fiskehallen og kornsiloen i umiddelbar nærhet.

Skur 38 antas å være Norges første armerte betongbygg og er bevaringsverdig - som flere av skurene på Akershusstranden. Det rehabiliterte bygget bidrar til byutviklingen av området, men ivaretar samtidig den maritime kulturhistorien. En ny tilbaketrukket glassfasade bidrar til å synliggjøre de store søylene fra 1950.

Havneområdet er fortsatt åpent for alle og byggets uteareal er i enda sterkere grad knyttet til Gastenparken i nord. Dette oppnås gjennom et nytt uteområde utenfor kantinen/cafeen og sittemuligheter på byggets sjøside. Kaiområdet foran Skur 38 benyttes til skipsanløp og er underlagt sikkerhetsreglement for utenlandske skipsanløp.

Bygget sertifiseres etter BREEAM NOR med mål «Excellent». Foreløpig preanalyse viser at prosjektet er nesten på «Outstanding», men byggets vernestatus gjør at prosjektet ikke klarer å oppfylle passivhusnivå.

 

Materialer

Sirkulære kriterier Skur 38 står på Byantikvarens gule liste og er utpekt som verneverdig i Maritim kulturminneplan for Oslo. Men det har ikke lagt en demper på miljøambisjonene, snarere tvert imot. Bygget er nemlig rehabilitert etter FutureBuilts sirkulære kriterier: Eksisterende konstruksjoner og bygningsdeler er bevart og oppgradert der det har vært mulig for å forlenge byggets levetid. Historiske spor i flotte betongdetaljer i interiøret er sandblåst og eksponert. Paneler, lister i mahogny og gulv i Havnedirektørens gamle kontorer er rensket og bearbeidet til ny speilkledning på vegger i kantinen. Overskudd av granitt og treverk fra renovering av Rådhusbrygga er blitt til ny belegningsstein og nye benker utendørs. Dører fra Skur 38, næringsbygg på Skøyen og det nye Munch-museet er omlakkert og tilpasset ny bruk og nye tekniske krav.

Leirebasert betong Skur 38 er også først ute i Norge med å bruke leirebasert betong, og 65 kubikkmeter Futurecem fra Unicon er brukt til å støpe nytt gulv på grunn. Futurecem er en betongtype der en del av klinkeren, som er den store klimadriveren i betong, er erstattet av kalsinert (brent) leire og kalksteinsmel. En av fordelene er at leire, i tillegg til den rikelige forekomsten, brennes på mye lavere temperatur enn sement, noe som gir en betydelig energibesparelse. I tillegg reudserer man de store, kjemiske utslippene som oppstår når klinkeren dannes. Til sammen gir dette en vesentlig CO2-reduksjon sammenlignet med konvensjonell betong.

Les mer om leirebetongen på Skur 38 her.

Isolerende kalkpuss De gamle betongfasadene til Skur 38 er nå kledd i en høyisolerende kalk-puss, med en grønnmalt overflate som knytter Skur 38 sammen med omgivelsene langs kaia. For å oppnå de lave U-verdiene som kreves for et Breeam Excellent-bygg og samtidig unngå å endre fasadenes utseende, er det blitt brukt isokalk, et isolerende pussystem som inneholder aerogel som gir pussen gode isolasjonsegenskaper, og som tidligere er benyttet på bevaringsverdige bygg med gode erfaringer. Den høye isolasjonsverdien gjør at man ikke trenger så tykk påføring, og dermed endres ikke fasadenes uttrykk seg nevneverdig – en faktor som har vært viktig i rehabiliteringen av Skur 38. Les mer om kalkmørtelen på Skur 38 her.

Av andre tiltak på materialsiden nevnes: - LCA og LCC-betraktninger har påvirket valg av produkter med lavest mulig CO2-utslipp innenfor prosjektets økonomiske rammer - Gjenbrukbare bygningsdeler er kartlagt ved hjelp av verktøyet LOOPFRONT. Dette gjør det lettere å gjenbruke elementer også i andre prosjekter - Eksisterende bærekonstruksjoner er bevart og oppgradert for forlenget levetid hvor mulig. Deler av innredningen (kontormøbler) gjenbrukes - Sambruk av funksjoner, også for eksterne brukere bidrar til å utnytte arealene bedre.

 

Energi

Prosjektet kombinerer energirehabilitering med bevaring av antikvariske verdier. Dette oppnås blant annet ved innovative løsninger som Aerogel-puss og ekstra isolasjon under bygget.

Målet har vært energimerke B. Dette betyr et lavere energiforbruk (levert energi) enn 115 kWh/m2/år for oppvarmet BRA av bygget, etter beregning ca. 108 kWh/m2/år. Opprinnelig energiforbruk var ca. 220 kWh/m2/år. Rehabiliteringen har slik gitt en redusjon på ca. 51 prosent.

Solceller på taket ble vurdert, men forkastet av antikvariske hensyn, men også fordi takets utforming med mange arker og sprang, som kaster skygge på panelene og som igjen reduserer muligheten for effektiv plassering av paneler.

Energiforsyning leveres via lokal lufttil vann-varmepumpe. Systemet skal på sikt kunne tilknyttes felles varmesentral basert på sjøvarme eller fjernvarme – løsninger som er for kostbare å etablere for Skur 38 alene. Med en tidshorisont på 10-15 år er imidlertid dette en realistisk løsning for hele Akershusstranda.

Prosjektet har praktisert utslippsfri byggeplass så langt det har vært mulig, men ellers fossilfri for å redusere CO2-utslipp fra byggefasen.

 

Transport

Oslo Havn utførte i 2019 en reisevaneundersøkelse og i november 2020 ble det utarbeidet en mobilitetsplan for prosjektet. Skur 38 ble allerede i 2019 sertifisert som sykkelvennlig arbeidsplass (sertifikat sølv) av Syklistens Landsforening. På sikt ønsker Oslo Havn å gå for gull.

Aktuelle mobilitetstiltak:

- Prioritering av gående og syklende i og rundt bygget - Høykvalitets sykkelfasiliteter inne og ute i hht. FutureBuilts veileder "Sykkelvennlige bygg", BREEAM-krav, sertfiseringsrapport fra Syklistenes Landsforening og Oslo kommunes kravspesifikasjon. Dette omfatter sykkelplasser inne og ute, tilrettelegging for el- og lastesykler, garderobefasiliteter og serviceinnredninger for spyling og reparasjon - God tilknytning til kollektivtransport - Alle tjenestebiler fra Oslo Havn skal være elektriske (de fleste er det allerede), det legges til rette for enda flere ladepunkter - sykkel-pool og el-sparkesykler som kan brukes av alle ansatte til tjenestereiser (foreligger allerede) - Antall bilreiser til og fra bygget skal reduseres til et minimum - Antall p-plasser for bil skal reduseres fra opprinnelig 31 plasser til 7 plasser, hvorav 5 plasser reserveres for tjenestebiler. HAV disponerer i tillegg 13 plasser foran Skur 39 + 40 plasser som kan brukes av leietakere og gjester i flere skur langs Akershusstranda. Alle parkeringsplassene foran Skur 39 vil avvikles i løpet av 10-15 år, slik at Skur 38 på sikt kun har 7 p-plasser totalt.

 

Biologisk mangfold

Utearealet ved Skur 38 var før rehabiliteringen en asfaltert flate uten innslag av trær eller beplantning. Potensialet til forbedring av naturmangfoldet i området var slik stort. Nord for Skur 38 ligger Gasten havnepark med engarealer, buskbeplantning og flere trær.

Ved å koble seg på grøntstrukturen fra Akershus festning og Gastenparken bidrar prosjektet til å videreføre grønstrukturen langs havnepromenaden. Prosjektet inkluderer nye plantefelt og nye trær. Flere grønne og permeable flater bidrar til bedre håndtering av regnvann. PBE har gitt føringer knyttet til biologisk mangfold ved behandling av rammesøknad og det ble utarbeidet en økologirapport med anbefalinger som prosjektet skulle følge.

En plan for belysning ble utarbeidet  for å unngå lysforurensing. Denneomfattet også anleggsfasen. Belysningen ble slått av når det ikke var aktivitet på byggeplassen og eventuell nødvendig belysning som sikkerhetstiltak for både ulykker og tyveri ble sensorstyrt.

 

Innovasjon

  • Ambisiøs energirehabilitering kombinert med vernehensyn

  • Arealeffektivitet og sambruk (antall brukere er økt med 1/3 og fellesarealer skal kunne brukes av eksterne)

  • Prosjektet brukte innovative verktøy for ombruk og har gjenbrukt mest mulig (også utover selve bærekonstruksjon)

  • Tilnærmet 90% sorteringsgrad på avfall   

  • Fossilfri og mest mulig utslippsfri byggeplass   

  • Fokus på lysforurensning   

  • Samspillsentreprise for å oppnå de høye miljøambisjonene.

 

Nøkkeltall

AREALFORBRUK  
   
Areal BTA 3333 m2
Areal BRA 3772 m2
Antall beboere/brukere 155
Glassandel 0,19 %
Kompakthetsfaktor 0,2878 m3 volum/m2

 

ENERGI

Netto energibehov:108 kWh/m2 år. Levert energi: 173 kWh/m2 år (beregnet i hht NS 3700/3701).

Netto energibehov: 108 kWh/m2/år (NS3031)
108 kWh/m2/år passivhusstandard
Beregnet levert energi: 173 kWh/m2/år (NS3031)
173 kWh/m2/år passivhusstandard
Energikilder: Varmepumpe luft-vann (det tilrettelegges for felles sjøvanns varmepumpe), Elektrokjel for vannbåren varme (kun spisslast)

ENERGIBUDSJETT

Romoppvarming: 5 kWh/m2/år
Ventilasjonsvarme: 5,3 kWh/m2/år
Varmtvann: 10 kWh/m2/år
Viftedrift: 17,4 kWh/m2/år
Pumpedrift: 1,9 kWh/m2/år
Belysning: 43,8 kWh/m2/år
Teknisk utstyr: 63,2 kWh/m2/år
Ventilasjonskjøling: 11,4 kWh/m2/år

BYGNINGSTEKNISK

U-verdi tak: 0,13 snittverdi
U-verdi gulv: 0,09 snittverdi
U-verdi yttervegg: 0,14 snittverdi
U-verdi vindu/dører: 0,77 snittverdi
Tetthetsprøving (målt): 0,5 (ved 50 Pa undertrykk)
Spesifikk vifteeffekt: 1,5 kW/(m3/s)

TRANSPORT

Avstand til sentrum: 1000 m
Nærmeste høyfr. koll.knutepkt: 200 m
Parkeringsplasser: 2,1 (pr. 1000 m2)
Sykkelparkeringsplasser: 21,3 (pr 1000 m2)
0,5 (pr. boenhet/arb.plass)

KOSTNADER OG STØTTE

Prosjektstøtte Enova: 3850000 kr

Prosjektopplysninger

PROSJEKTDETALJER

Adresse: Akershusstranda 19
Kommune: Oslo
Prosjektperiode: 2019 - 2022
Prosjekttype: Ombruk / rehabilitering / transformasjon
Funksjon/bygningstype: Næring
Miljøstandard: BREEAM Excellent
Forbildeprogram: FutureBuilt
Entrepriseform: Totalentreprise

PROSJEKTTEAM

Byggherre: Oslo Havn
Arkitekt: Hille Melbye Arkitekter, Kristin Jarmund Arkitekter
Opprinnelig arkitekt: Bernt Arlet Christian Lange
Prosjektledelse: ÅF Advansia
Landskapsarkitekt: Bjørbekk & Lindheim Landskapsarkitekter
Interiørarkitekter: IARK
Miljørådgiver: Bollinger + Grohmann Ingeniører
Rådgivere: Protekno, Protekno, PEP, KB arkitekter, Focus, Brekke & Strand Akustikk
Hovedentreprenør: Varden Entreprenør
Byggledelse: Varden Entreprenør

Kart